(780) 539-2121

438 Corner Glen Way NE
Calgary (A2273925)

$770,900
4
3
2,633 ft²
Loading Listing...

Loan Term
Interest Rate
Loan Amount
Annual Tax
Ann. Insurance

* Amounts are estimates only. Final payment amounts may vary.

Description

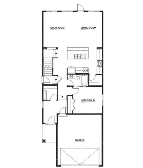
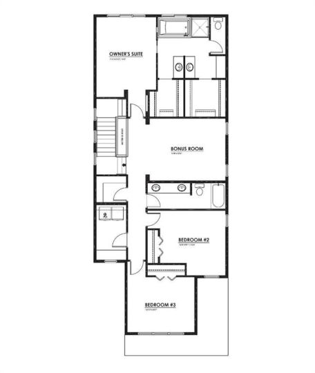
*SIDE ENTRANCE*BRAND NEW HOME*QUICK POSSESSION*10 SOLAR PANELS*MAIN FLOOR BEDROOM SUITE* Amazing Design! Unique in Features! Over 2600+ SF of Stylish design welcomes you into this stunning FOUR BEDROOM and 3 FULL BATH home located in the beautiful community of Cornerstone. You're welcome to a thoughtfully designed living space that maximizes every inch while offering an abundance of space for your whole family to enjoy! The Gorgeous OPEN FLOOR PLAN invites you in to discover a lovely kitchen that boasts beautiful QUARTZ countertops, a sleek stainless steel Whirlpool appliance package with an upgraded electric stove, a French Door fridge with/ Internal Water/Ice, a Microwave and a Broan power pack built-in cabinet hood fan. A large walk-in corner pantry and beautiful extended oversized flush centre Island that overlooks the generous great room and dining room-Ideal for all entertaining. A sizeable 4TH BEDROOM on the main floor, perfect for a large family or working from home as you have a full bath adjacent to the functional space with a private pocket door access. Upstairs, you will discover THREE MORE BEDROOMS with a Primary Bedroom boasting a 5pc en suite with dual vanities, a stand-alone shower, an oversized bath and two large walk-in closets. A centralized BONUS ROOM offers an additional living space and another full bath, plus 2nd-floor laundry with a window feature, completing the level. ADDITIONAL FEATURES: Fit and Finish SELECT, professionally designed Grey Palette, rear patio door, convenient side entrance, raised 9' basement ceiling height, and 3-piece rough-in plumbing. Situated close to the International Airport with quick access to both Deer Foot Trail and Stoney Trail, along with new amenities being added to the community continuously, you will enjoy all Cornerstone has to offer. A brand new build with all of the difficult decisions decided along with a functional and intelligent floor plan for a large family. Perfect!!

Property details

Basic Info

MLS® #
A2273925
Property Type:
Residential
Subtype:
Detached
Subdivision:
Cornerstone
Price
$770,900
Sale/Lease:
For Sale
Size:
2,633 sq.ft.
Bedrooms:
4
Bathrooms:
3
Year Built:
2025 (0 years old)

Building Info

New Construction:
Yes
Builder:
Jayman BUILT by its operating partner Jayman BUILT
Structure Type:
House
Building Style:
2 Storey
Garage:
Yes
Parking:
Concrete Driveway, Double Garage Attached, Garage Door Opener, Garage Faces Front
Basement:
Full
Features:
Double Vanity, High Ceilings, Kitchen Island, No Animal Home, No Smoking Home, Open Floorplan, Pantry, Quartz Counters, Smart Home, Tankless Hot Water, Vinyl Windows, Walk-In Closet(s)
Inclusions:
10 SOLAR PANELS
Appliances:
Dishwasher, Electric Stove, Garage Control(s), Microwave, Range Hood, Refrigerator, Tankless Water Heater
Laundry:
Laundry Room, Upper Level
Exterior Features:
None
Patio/Porch Features:
None

Neighborhood Info

Nearby Amenities:
Playground, Schools Nearby, Sidewalks, Street Lights

Condo/Association Info

Condo Amenities:
None
Condo Fee 2:
$150

Lot / Land Info

Lot Size:
0.09 acres
Lot Features:
Corner Lot, Irregular Lot
Water:
Public
Zoning:
R-G

Materials & Systems

Roof:
Asphalt Shingle
Exterior:
Stone,Vinyl Siding,Wood Frame
Floors:
Carpet, Vinyl Plank
Foundation:
Poured Concrete
Heating:
Forced Air, Natural Gas
Cooling:
None
Amenities:
Playground, Schools Nearby, Sidewalks, Street Lights

Listing Info

Possession:
Immediate
Days on Market:
8
Your Real Estate Team
  • Century 21 Grande Prairie Realty

    Century 21 Grande Prairie Realty
    (780) 539-2121 1-888-831-2121 (780) 539-2144

    Email

    Share This Listing
    Ask a question
    • This site is protected by reCAPTCHA and the Google Privacy Policy and Terms of Service apply.